Продается 2-х комн. квартира, 57 кв.м., 18/23 эт
Обзор№ - 17806
| Стоимость | 9 100 000 |
|---|---|
| Комнат в квартире | 2 |
| Площадь, кв.м. | 57 |
| Жилая площадь | 32 |
| Площадь кухни, кв.м. | 10 |
| Этаж | 18 |
| Этажность | 23 |
| Материал стен | Монолитный |
Адрес
| Населенный пункт | Калуга |
|---|---|
| Улица | улица 65 лет Победы |
| Номер дома | 17 |
В избранное Продается 2-комн квартира ул. 65 лет Победы, 17
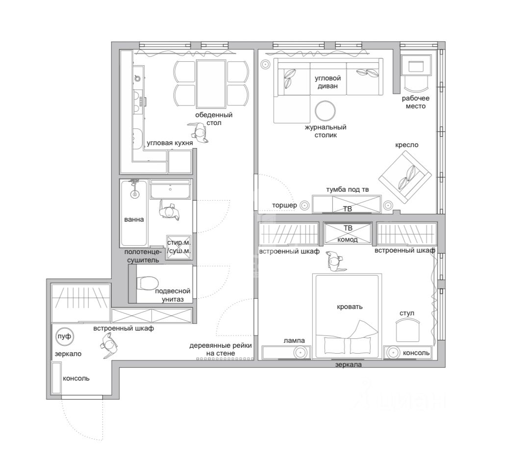
Продается уютная 2х комнатная квартира в ЖК Лесной. В квартире сделан ремонт с использование качественных материалов. Новым собственникам оставим практически всю мебель и встроенную технику. Встроенные шкафы (коридор, спальня), кухня - фасады мдф/пленка, фурнитура Blum. Диван и кровать изготавливались на заказ. В зале установлен кондиционер. Электрический теплый пол (прихожая, присоединённая лоджия, ванная). Окна выходят на две стороны (город и Губернский парк). Современный дом, со стильным подъездом, двор без машин, огромная парковка. 1 собственник. Квартира покупалась за наличные. В собственности более 5 лет. Объект 17806































