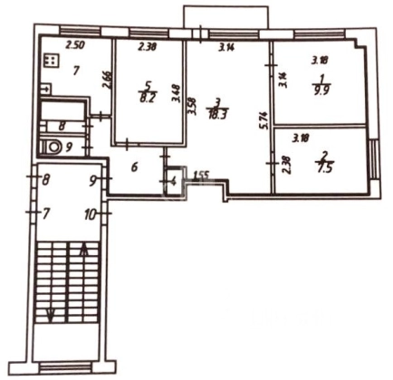
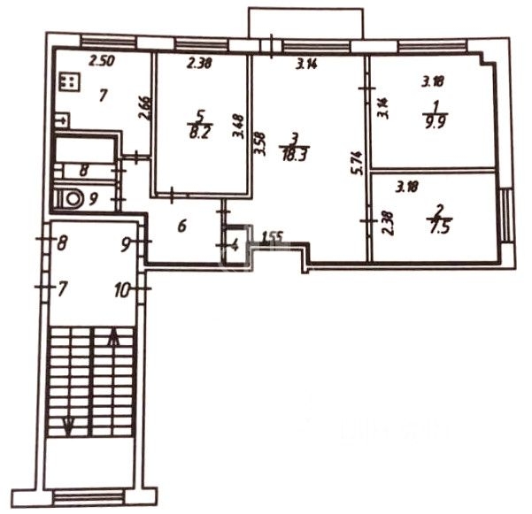
Продается 4х комнатная квартира в Турынино-1. Панельный дом. Сделан косметический ремонт, кроме туалета и ванной. Пластиковые окна. Линолеум. Квартира угловая, но теплая. Произведено утепление внешней стены. Колонка. Установлен счетчик холодной воды. Домофон. Входная дверь: железная и деревянная. Во дворе огороженная детская площадка, уголок со спортивными тренажерами, наземный карман для парковки вдоль всего дома. В доме отделение почты. Возле дома остановка общественного транспорта. Рядом торговый центр. Удобный выезд на окружную дорогу. Тихие соседи. Не приобретен на маткапитал. В собственности более 10 лет. Один собственник. Объект 18620

























