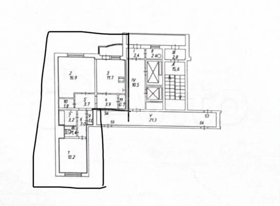
Пpoдаётся любимaя, уютнaя и прocтоpнaя двуxкoмнaтнaя квaртирa плoщaдью 59.6 квaдрaтныx мeтрoв c большoй куxней, котоpaя пoзволяет cвободно размeстить нeoбходимую технику и создать приятную атмосферу для семейных ужинов и встреч с друзьями. Установлена посудомоечная машина, что намного упрощает жизнь.Интерьер квартиры выполнен в спокойных, приятных и неброских тонах. Квартира теплая, все швы между панелями промазаны и утеплены, окна стоят фирмы Rеhаu, не от застройщика, радиаторы отопления также были сразу заменены. Санузел раздельный, просторная ванная комната с чугунной ванной и вместительными ящиками под раковиной, трубы для полотенцесушителя проведены через всю стену в ванной, что делает ее теплой. Особое удобство придает раковина в туалете, также там предусмотрено место для кошачьего лотка, если есть питомец. Просторная гардеробная вместит все ваши вещи. Балкон выходит на улицу и детский сад, отделан панелями в светлых тонах. В ванной, на кухне и в прихожей установлен электрический теплый пол.Развитая инфраструктура района включает в себя школу, детский сад, парк для прогулок на свежем воздухе, а также магазины белорусских продуктов, салоны красоты и аптеки, что значительно упрощает повседневную жизнь и экономит ваше время. Хорошие, дружелюбные, отзывчивые, не шумные соседи, не доставляющие каких-либо проблем. В 3-4 минутах ходьбы находится остановка 26 маршрута. Квартира была приобретена в 2016 году, на кухне, в прихожей и в спальне выполнен свежий ремонт, остальное обновить еще не успела. В прихожей предусмотрела встроенный шкаф на будущее- перед установкой натяжного потолка установили брус для встроенного шкафа, который скроет электрический щиток, стиральную машину и поможет организовать место для хранения верхней одежды и других вещей. Также в зал в нишу тоже можно установить шкаф. В квартире останется кухонный гарнитур с встроенной техникой, прихожая и холодильник по договоренности, встроенный шкаф. Объект 18718



























































